Districts Impacted
What is the current situation on Hall Street?
The Missouri Department of Transportation has a resurfacing project set for Route H (Hall St.) in the city of St. Louis from Adelaide to where Route H becomes Riverview. The project is set to start in 2024 and should be complete by summer 2025.
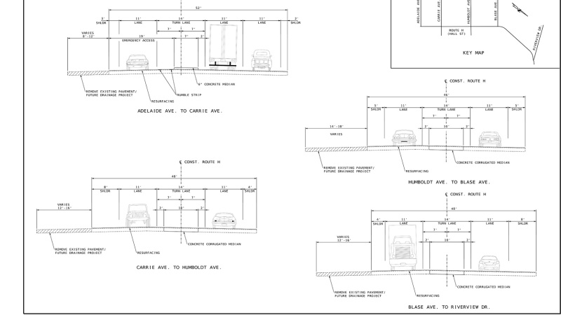
In addition, the department is working with the city to include some methods to reduce speed and increase safety along the corridor. These include reducing the number of lanes through this section of Route H, adding dedicated left turn lanes at several intersections along the corridor and placing concrete medians between traffic going north and heading south.
This project will allow for some some additional drainage work completed by the Metropolitan Sewer District along the corridor. As with all utility work, any impacts to the roadway should be returned to their original condition by the utility company.
The project was awarded on June 5, 2024 to RV Wagner, for $6.8 million
Project displays and information
Why are the safety improvements being considered?
Currently, traffic travels at excessive speeds along this corridor. A recent study showed that most drivers were going at least 20 to 40 percent over the posted speed limit on Hall St.
The excessive speed on Hall St. leads to a significant number of high severity crashes along the corridor. There were a total of 13 fatal and 21 serious injury crashes on Hall St. between Riverview Drive and Adelaide Ave. from 2017-2021. The crash rate of this segment of Hall St. is about four times the statewide average for similar roadways.
These improvements will help calm the excessive speeds which should help reduce crashes and keep the roadway safer. Drivers along the corridor can do their part, as well, by following the posted speed limits and avoiding aggressive driving.
Traffic along Route H (Hall St.) will still be able to flow with one through lane of traffic, as long as designated left turn lanes are included in the design. These lanes allow traffic turning left to pull out of the main flow, while they are waiting for space to cross the lanes. Through traffic can still continue along the corridor. This lane reduction also makes room for better drainage, which can reduce standing water on the roadway. Currently, that happens frequently, even during moderate rainfalls
How will this impact emergency vehicles?
This project is designed to be able to allow emergency vehicles to effectively travel through the corridor. There should be little to no impact to emergency response times. Where necessary, the median design will be low enough that emergency vehicles will be able to travel over them.
How will this impact the trucking that uses the corridor?
The truck traffic on this corridor is significant, given the important freight connections along Hall Street. Trucks will be able to use this corridor efficiently. Turns into and out of the warehouses and other facilities commonly used by trucks are designed to meet the needs of the vehicles using the corridor. Outreach to many of the businesses along the corridor has already begun.
What are MoDOT’s responsibilities on Route H?
MoDOT has a maintenance agreement with the city of St. Louis for certain roads within the city limits. MoDOT is responsible for maintaining signals, signs, striping, sweeping and pavement maintenance on Route H. St. Louis City retains ownership and responsibility for everything else. During this process, MoDOT will work with the city of St. Louis to evaluate and consider other safety improvements outside of the above maintenance responsibilities.
For concerns beyond MoDOT’s responsibility, please contact the city of St. Louis citizens service bureau at 314-622-4800.
What is the timeline?
| Milestone | Anticipated |
| Draft plans | Summer 2023 |
| Final plans | Spring 2024 |
| Project awarded | Summer 2024 |
| Work begins | Late summer 2024 |
| Project completed | Summer 2025 |
Project documents
- Route H Fact Sheet
- SLDC Why Hall Steet
- SLDC DIsplay2.pdf
- SLDC DIsplay3.pdf
- Route H - Hall Street - Overall display
- Route H - Hall Street - Roadway configurations
- Route H - Hall Street- Hall and Carrie turning movements
- Route H - Hall Street - right and left turning movements
- MSDDisplay1.pdf
- MSDDisplay2.pdf